Haustyp 213 - 192 m²
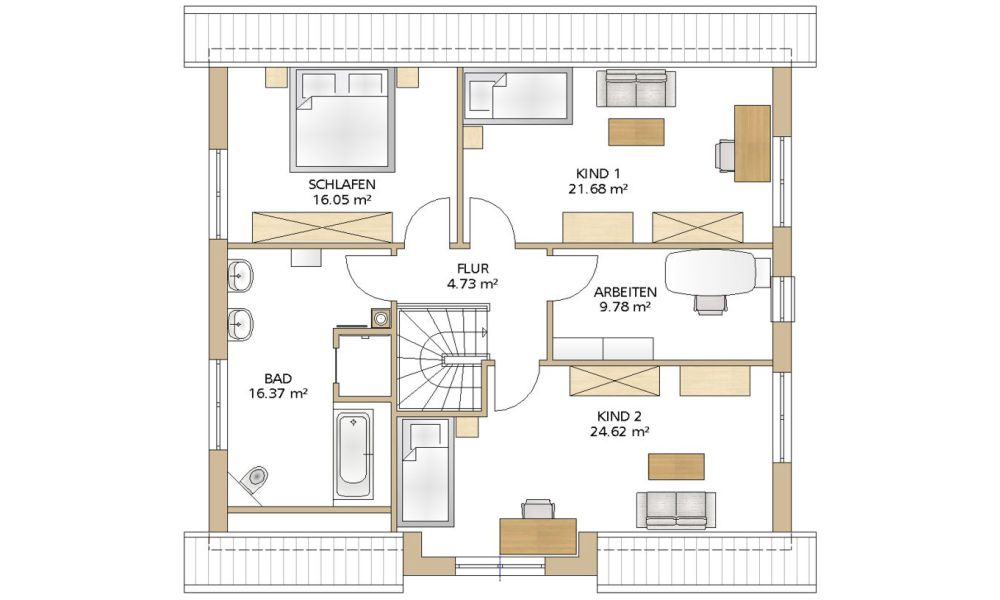
Geräumig und dennoch gemütlich präsentiert sich unser Haustyp 213. 6 Zimmer, 2 Bäder, eine Küche mit Tür nach außen und ein komfortabler Hausanschlussraum mit optionaler Tür zur Garage bieten genügend Platz für die ganze Familie.
Optisch besticht die Frontansicht des Einfamilienhauses mit einer großen Gaube, die von einem Rundbogenfenster geschmückt wird. Ein zusätzlicher Abstellraum kann optional im Spitzboden entstehen, der durch eine Bodeneinschubtreppe erreichbar ist.
Maße & Preise
-
Außenmaße
11,63 x 10,50 m -
Grundfläche
192,86 m² -
Wohnfläche
180,77 m² -
Mitbau-Haus (Fliesen, Maler, Bodenbeläge, Sanitärobjekte & Innentüren in Eigenleistung)*
377.493,00 EUR -
Schlüsselfertig (ohne Maler / Bodenbeläge)*
412.611,00 EUR -
Bezugsfertig*
469.454,00 EUR
* lt. Leistungsbeschreibung
Inklusivleistungen
-
Änderung des Grundrisses
-
Bauantrag
-
Baugrunduntersuchung
-
Baustromverteiler
-
Standard-Erdarbeiten & Bodenplatte
-
Außenwände massiv 365 mm
-
Innenwände komplett massiv
-
Braas-Tondachziegel
-
Haustür aus Aluminium
-
Sockelputz
-
Bodenebene Dusche
-
Wärmepumpe
-
Fußbodenheizung
-
Fliesen im Bad, WC und HAR**
-
Blower Door Test
** nicht bei Mitbau-Haus
Kontakt
Hier können Sie weitere Informationen und Preise zu diesem Haustyp anfordern. Gern stehen wir Ihnen auch für ein Beratungsgespräch zur individuellen Anpassung zur Verfügung.
































