Haustyp 207 - 138 m²
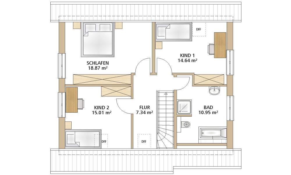
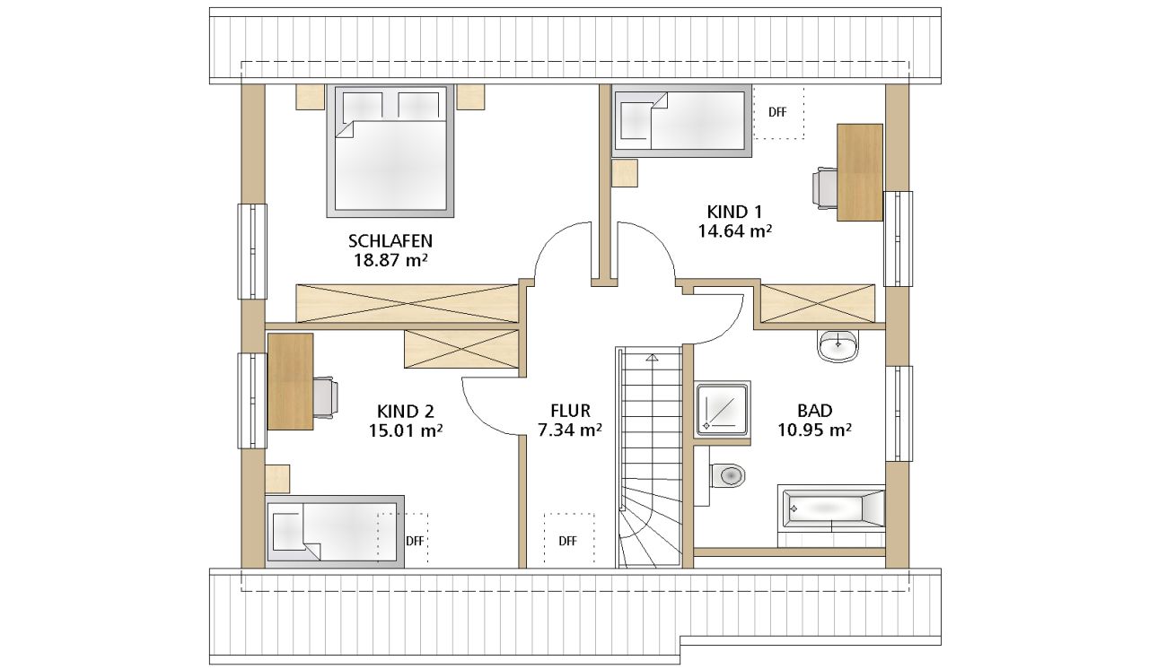
122 m² Wohnfläche stehen im Haustyp 207 zur Verfügung. Ein sehr großzügiger Wohn- / Essbereich ist über eine schräg angeordnete Tür von der Diele aus erreichbar. Ein zusätzliches Zimmer im Erdgeschoss erhöht die Flexibilität, wenn Gäste kommen oder im Homeoffice gearbeitet wird. Zwei große Kinderzimmer im Obergeschoss bieten ausreichend Platz für Kinder jeden Alters. Ein Fenster in der Diele und ein Dachfenster im oberen Flur sorgen für eine natürliche Beleuchtung des Treppenbereichs.
Außen erscheint das Haus 207 in klassischer Optik ohne Schnörkel. Mit Ausstattungen, wie zum Beispiel einer Verbreiterung des Dachüberstandes im Eingangsbereich, kann die Optik aber auch gern detailreicher werden.
Maße & Preise
-
Außenmaße
10,50 x 8,35 m -
Grundfläche
138,61 m² -
Wohnfläche
122,08 m² -
Mitbau-Haus (Fliesen, Maler, Bodenbeläge, Sanitärobjekte & Innentüren in Eigenleistung)*
310.553,00 EUR -
Schlüsselfertig (ohne Maler / Bodenbeläge)*
339.374,00 EUR -
Bezugsfertig*
385.214,00 EUR
Inklusivleistungen
-
Änderung des Grundrisses
-
Bauantrag
-
Baugrunduntersuchung
-
Baustromverteiler
-
Standard-Erdarbeiten & Bodenplatte
-
Außenwände massiv 365 mm
-
Innenwände komplett massiv
-
Braas-Tondachziegel
-
Haustür aus Aluminium
-
Sockelputz
-
Bodenebene Dusche
-
Wärmepumpe
-
Fußbodenheizung
-
Fliesen im Bad, WC und HAR**
-
Blower Door Test
Kontakt
Hier können Sie weitere Informationen und Preise zu diesem Haustyp anfordern. Gern stehen wir Ihnen auch für ein Beratungsgespräch zur individuellen Anpassung zur Verfügung.
































