Haustyp 205 - 143 m²
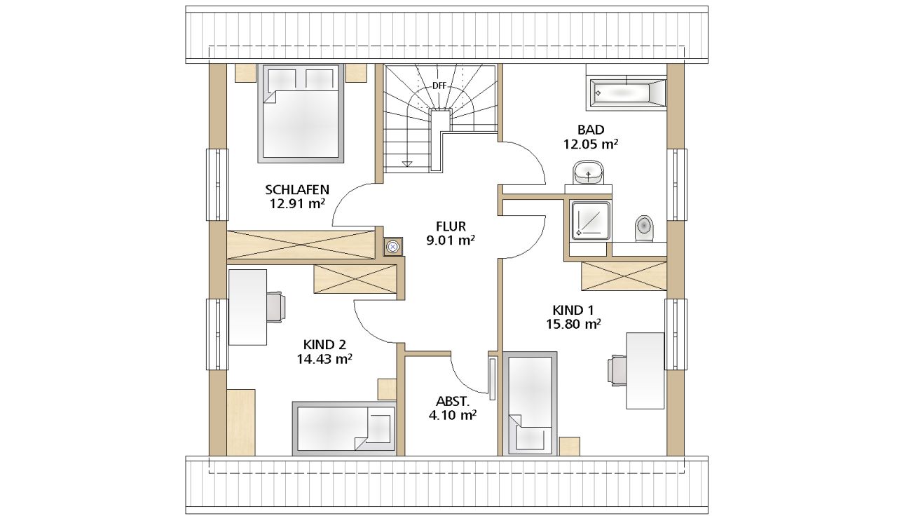
Ein zusätzliches Zimmer im Erdgeschoss auf knapp 130 m² Wohnfläche eröffnet viele Möglichkeiten. Küche und Wohnen liegen direkt nebeneinander und können offen oder geschlossen ausgeführt werden. Möglich ist auch eine Variante mit Tresen oder Mittelinsel in der Küche. Der Hausanschlussraum wird durch einen Abstellraum im Obergeschoss ergänzt. Damit steht genügend Platz zum Verstauen zur Verfügung. Drei große Schlafräume werden durch ein Bad mit großer Dusche ergänzt. Der große Flur bietet die Möglichkeit, eine Raumspartreppe in den Spitzboden nachzurüsten.
Das Satteldach kennzeichnet auch den Klassiker 205. Die Außenmaße von 9,00 x 10,00 m passen auf nahezu jedes Grundstück.
Maße & Preise
-
Außenmaße
10,00 x 9,00 m -
Grundfläche
143,05 m² -
Wohnfläche
128,88 m² -
Mitbau-Haus (Fliesen, Maler, Bodenbeläge, Sanitärobjekte & Innentüren in Eigenleistung)*
319.366,00 EUR -
Schlüsselfertig (ohne Maler / Bodenbeläge)*
351.284,00 EUR -
Bezugsfertig*
399.814,00 EUR
Inklusivleistungen
-
Änderung des Grundrisses
-
Bauantrag
-
Baugrunduntersuchung
-
Baustromverteiler
-
Standard-Erdarbeiten & Bodenplatte
-
Außenwände massiv 365 mm
-
Innenwände komplett massiv
-
Braas-Tondachziegel
-
Haustür aus Aluminium
-
Sockelputz
-
Bodenebene Dusche
-
Wärmepumpe
-
Fußbodenheizung
-
Fliesen im Bad, WC und HAR**
-
Blower Door Test
Kontakt
Hier können Sie weitere Informationen und Preise zu diesem Haustyp anfordern. Gern stehen wir Ihnen auch für ein Beratungsgespräch zur individuellen Anpassung zur Verfügung.
































