Haustyp 204 - 132 m²
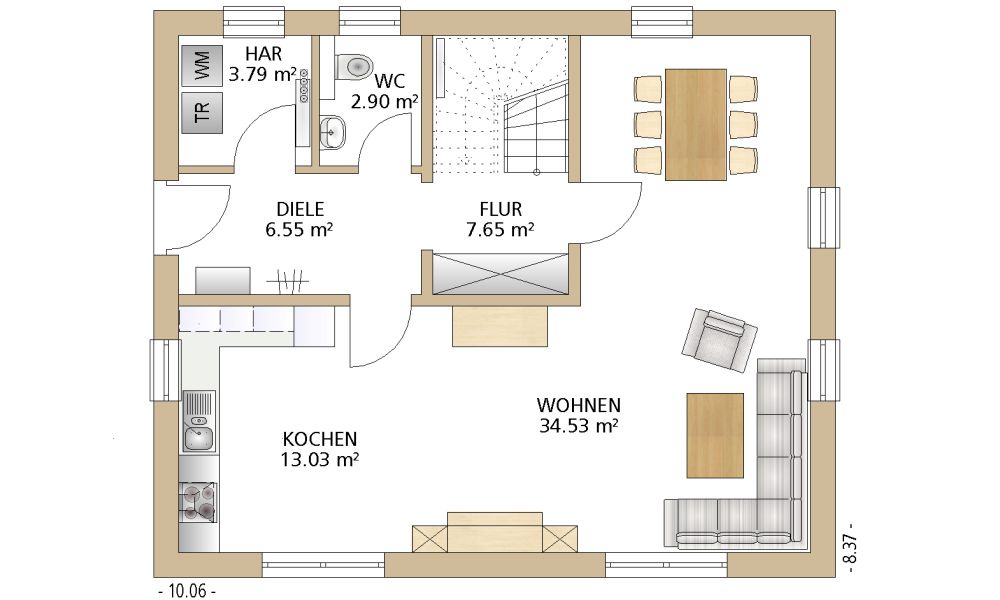
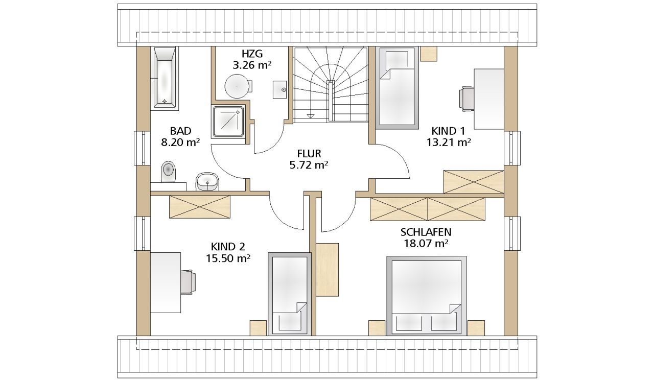
Etwas mehr als 120 m² Wohnfläche stehen den Bewohnern des Haustyps 204 zur Verfügung. Ein großer, offener Wohn- / Essbereich lädt zum Verweilen ein. Ein Hausanschlussraum im Erdgeschoss wird hier mit einem separaten Heizungsraum im Obergeschoss kombiniert. Damit stehen auf beiden Etagen Abstellmöglichkeiten zur Verfügung. Die Kinder- und das Schlafzimmer sind großzügig dimensioniert. Interessant ist auch die Schranknische gegenüber der Treppen.
Optisch passt der Haustyp 204 in jedes Einfamilienhausgebiet. Die bodentiefen Fenster im Obergeschoss betonen die Offenheit des Hauses. Der seitliche Eingang sorgt für kurze Wege zu Stellplätzen oder Garagen.
Maße & Preise
-
Außenmaße
10,06 x 8,37 m -
Grundfläche
132,20 m² -
Wohnfläche
120,74 m² -
Mitbau-Haus (Fliesen, Maler, Bodenbeläge, Sanitärobjekte & Innentüren in Eigenleistung)*
300.434,00 EUR -
Schlüsselfertig (ohne Maler / Bodenbeläge)*
326.693,00 EUR -
Bezugsfertig*
370.002,00 EUR
Inklusivleistungen
-
Änderung des Grundrisses
-
Bauantrag
-
Baugrunduntersuchung
-
Baustromverteiler
-
Standard-Erdarbeiten & Bodenplatte
-
Außenwände massiv 365 mm
-
Innenwände komplett massiv
-
Braas-Tondachziegel
-
Haustür aus Aluminium
-
Sockelputz
-
Bodenebene Dusche
-
Wärmepumpe
-
Fußbodenheizung
-
Fliesen im Bad, WC und HAR**
-
Blower Door Test
Kontakt
Hier können Sie weitere Informationen und Preise zu diesem Haustyp anfordern. Gern stehen wir Ihnen auch für ein Beratungsgespräch zur individuellen Anpassung zur Verfügung.
































