Haustyp 215 - 128 m²
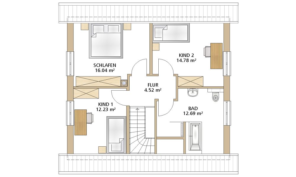
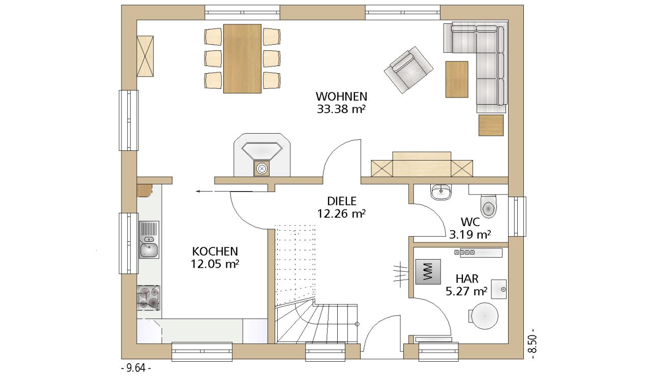
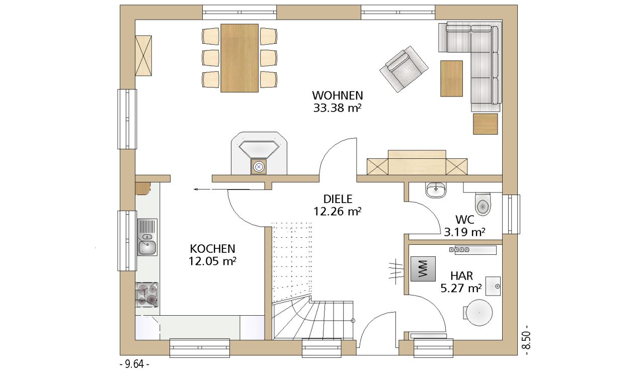
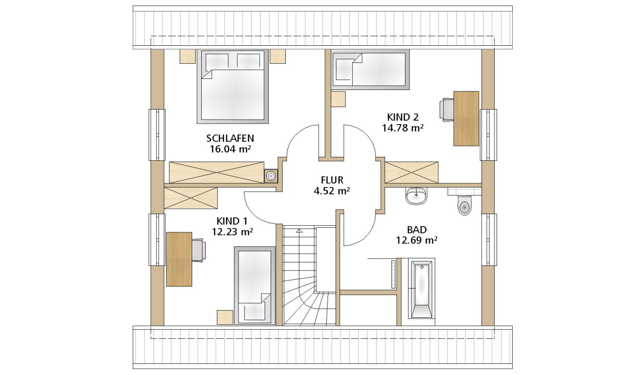
Unser Haustyp 215 ist nicht nur von der Kategorie her ein echter Klassiker. Klare Raumaufteilungen sorgen für eine kostengünstige Bauweise. Mit dem Einkauf gelangen Sie direkt von der Diele in die Küche, mit dem fertigen Essen dann direkt von Küche in den Essbereich. Das ist praktisch. Den Flur im Obergeschoss haben wir auf ein Minimum reduziert. Damit bleibt mehr Platz für die wichtigeren Räume.
Mit einem Außenmaß von 9,64 x 8,50 m eignet sich das Haus 215 auch für kleinere Grundstücke. Zwei große Terrassentüren bringen eine symmetrische Optik und gleichzeitig viel Licht ins Wohnzimmer.
Maße & Preise
-
Außenmaße
9,64 x 8,50 m -
Grundfläche
128,40 m² -
Wohnfläche
115,76 m² -
Mitbau-Haus (Fliesen, Maler, Bodenbeläge, Sanitärobjekte & Innentüren in Eigenleistung)*
290.854,00 EUR -
Schlüsselfertig (ohne Maler / Bodenbeläge)*
318.861,00 EUR -
Bezugsfertig*
358.885 EUR
Inklusivleistungen
-
Änderung des Grundrisses
-
Bauantrag
-
Baugrunduntersuchung
-
Baustromverteiler
-
Standard-Erdarbeiten & Bodenplatte
-
Außenwände massiv 365 mm
-
Innenwände komplett massiv
-
Braas-Tondachziegel
-
Haustür aus Aluminium
-
Sockelputz
-
Bodenebene Dusche
-
Wärmepumpe
-
Fußbodenheizung
-
Fliesen im Bad, WC und HAR**
-
Blower Door Test
Kontakt
Hier können Sie weitere Informationen und Preise zu diesem Haustyp anfordern. Gern stehen wir Ihnen auch für ein Beratungsgespräch zur individuellen Anpassung zur Verfügung.
































