Haustyp 206 - 139 m²
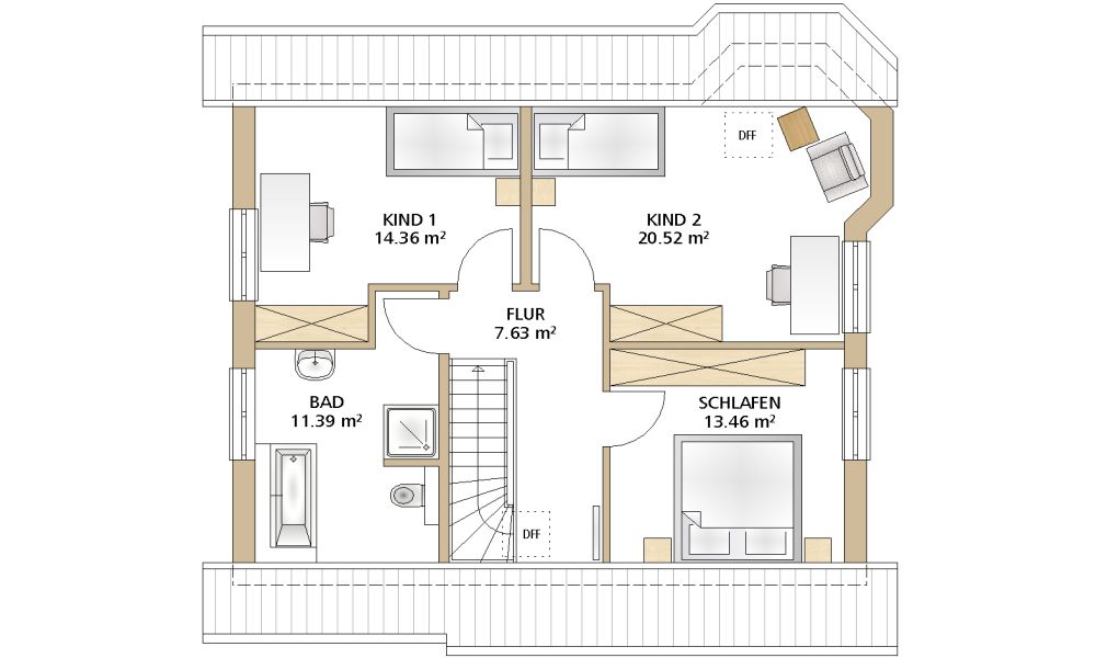
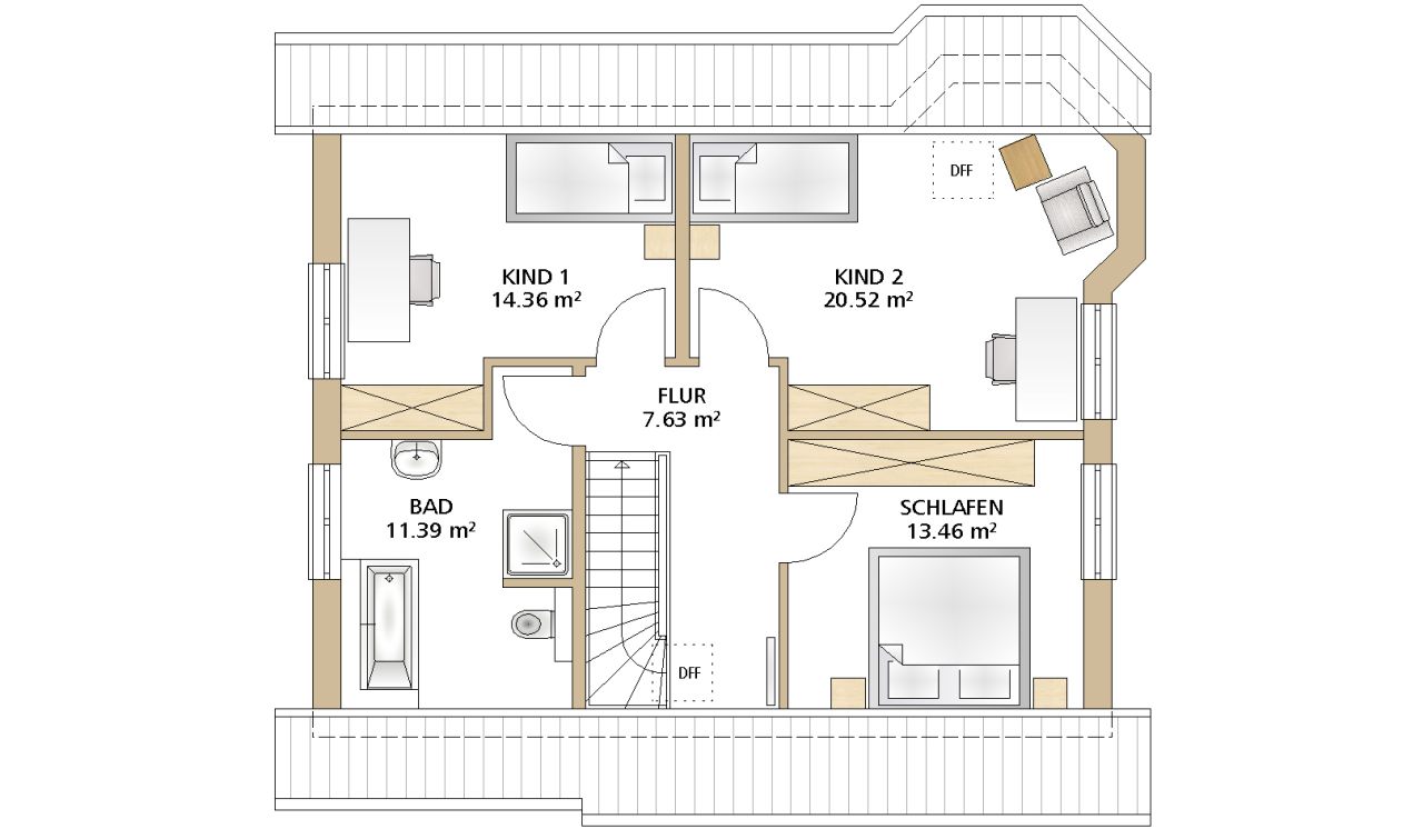
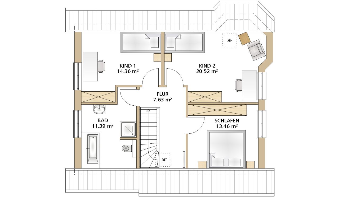
Markantestes Merkmal unseres Haustyps 206 ist der Eckerker. Er sieht schön aus und sorgt für einen gemütlichen Sitzplatz im Haus. Das zusätzliche Zimmer im Erdgeschoss kann auch als Erweiterung des Wohnzimmers ausgeführt werden. Der Flur im Obergeschoss ist als Galerie geplant. Dort kann zum Beispiel eine kleine Leseecke eingerichtet werden.
Auch außen stellt der Erker den Blickfang dar. Die optionale Erweiterung des Dachüberstandes bietet einen zusätzlichen Schutz vor Regen an der Eingangstür. Interessant ist auch die Optik der Haustür mit einem breiten Seitenteil.
Maße & Preise
-
Außenmaße
10,38 x 8,20 m -
Grundfläche
139,11 m² -
Wohnfläche
121,86 m² -
Mitbau-Haus (Fliesen, Maler, Bodenbeläge, Sanitärobjekte & Innentüren in Eigenleistung)*
312.737,00 EUR -
Schlüsselfertig (ohne Maler / Bodenbeläge)*
342.533,00 EUR -
Bezugsfertig*
388.405,00 EUR
* lt. Leistungsbeschreibung
Inklusivleistungen
-
Änderung des Grundrisses
-
Bauantrag
-
Baugrunduntersuchung
-
Baustromverteiler
-
Standard-Erdarbeiten & Bodenplatte
-
Außenwände massiv 365 mm
-
Innenwände komplett massiv
-
Braas-Tondachziegel
-
Haustür aus Aluminium
-
Sockelputz
-
Bodenebene Dusche
-
Wärmepumpe
-
Fußbodenheizung
-
Fliesen im Bad, WC und HAR**
-
Blower Door Test
** nicht bei Mitbau-Haus
Kontakt
Hier können Sie weitere Informationen und Preise zu diesem Haustyp anfordern. Gern stehen wir Ihnen auch für ein Beratungsgespräch zur individuellen Anpassung zur Verfügung.
































