Haustyp 340 - 127 m²
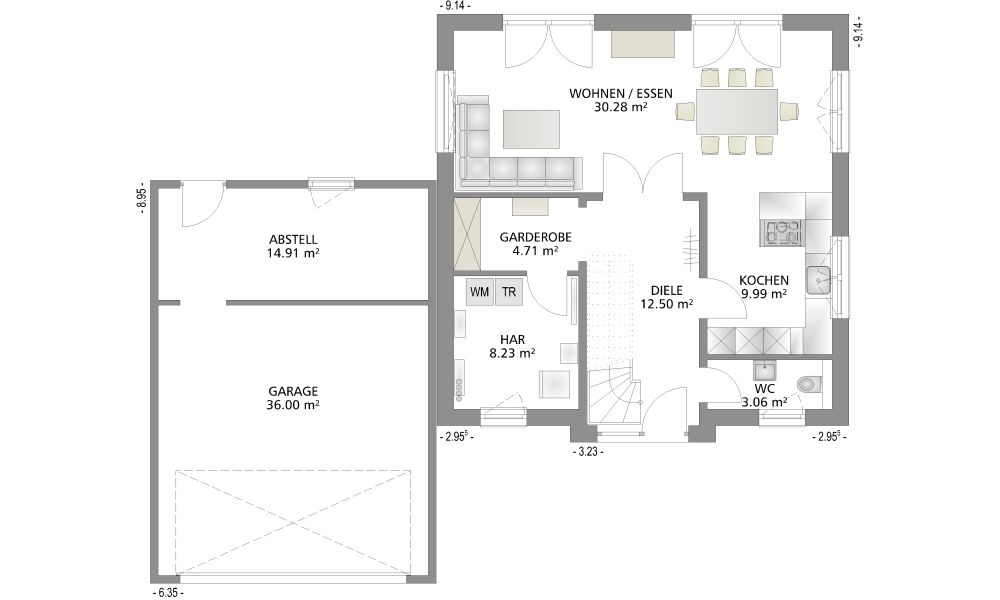
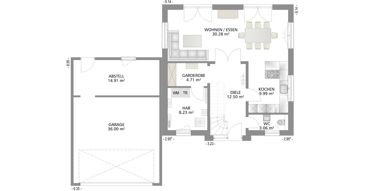
Praktisch. Der Haustyp 340 besticht durch seine Großzügigkeit, trotz seiner geringen Grundfläche von knapp 84 m². Dadurch bietet er sich hervorragend auch für kleinere Grundstücke an. Die beiden Vollgeschosse sorgen dafür, dass keine Wünsche offen bleiben. Ein offener Wohn-/ Essbereich lädt die ganze Familie zum gemütlichen Beisammensein ein. Besonders im Erdgeschoss ist die eigene Garderobe. Diese lässt sich super für Jacken und Schuhe, aber auch eventuell als Durchgang zur Garage nutzen.
Im Obergeschoss finden wir entlang der kleinen Galerie 3 Schlafräume, sowie ein geräumiges Badezimmer. Die Schlafzimmer lassen sich beliebig einteilen, so können Sie die Räume ganz individuell an Ihre Anforderungen anpassen.
Es gibt viele Möglichkeiten unseren Haustyp 340 individuell für Sie aufzubereiten. Kommen Sie gern mit Ihren Wünschen und Vorstellungen auf uns zu!
Maße & Preise
-
Außenmaße
9,14 x 9,50 m -
Grundfläche
135,70 m² -
Wohnfläche
127,28 m² -
Ausbauhaus*
309.394,00 EUR -
Schlüsselfertig (ohne Maler / Bodenbeläge)*
338.160,00 EUR -
Bezugsfertig*
378.158,00 EUR -
Garage
63.196,00 EUR
Inklusivleistungen
-
Änderung des Grundrisses
-
Gäste-WC mit Dusche
-
Gäste-WC
-
Bauantrag
-
Baugrunduntersuchung
-
Baustromverteiler
-
Standard-Erdarbeiten & Bodenplatte
-
Außenwände massiv 365 mm
-
Innenwände komplett massiv
-
Braas-Tondachziegel
-
Haustür aus Aluminium
-
Sockelputz
-
Bodenebene Dusche
-
Wärmepumpe
-
Fußbodenheizung
-
Fliesen im Bad, WC und HAR**
-
Blower Door Test
Kontakt
Hier können Sie weitere Informationen und Preise zu diesem Haustyp anfordern. Gern stehen wir Ihnen auch für ein Beratungsgespräch zur individuellen Anpassung zur Verfügung.
































