Haustyp 305 - 187 m²
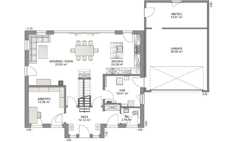
Außergewöhnlich. Unsere Stadtvilla 305 punktet mit vielen kleinen und großen Details. Die 6 m breite Hebeschiebetür stellt eine perfekte Verbindung zwischen Haus und Garten dar und lässt enorm viel Licht ins Haus. Für die Arbeit im Homeoffice steht ein helles Arbeitszimmer im Erdgeschoss bereit. Bemerkenswert sind auch der große Hausanschlussraum mit separatem Ausgang zur Garage und die Garderobennische.
Eine gerade Treppe führt zum Obergeschoss, dass 2 Kinderzimmer und ein Schlafzimmer mit Ankleide beherbergt. Zusätzlich finden sich dort 2 Bäder. Das Masterbad ist auch direkt vom Schlafzimmer erreichbar.
Gern passen wir auch diesen Grundriss Ihren persönlichen Wünschen und den Gegebenheiten auf Ihrem Bauplatz an.
Maße & Preise
-
Außenmaße
11,70 x 9,50 m -
Grundfläche
187,05 m² -
Wohnfläche
183,76 m² -
Mitbau-Haus (Fliesen, Maler, Bodenbeläge, Sanitärobjekte & Innentüren in Eigenleistung)*
387.613,00 EUR -
Schlüsselfertig (ohne Maler / Bodenbeläge)*
432.647,00 EUR -
Bezugsfertig*
489.595,00 EUR -
Garage
63.196,00 EUR
Inklusivleistungen
-
Änderung des Grundrisses
-
Gäste-WC
-
Bauantrag
-
Baugrunduntersuchung
-
Baustromverteiler
-
Standard-Erdarbeiten & Bodenplatte
-
Außenwände massiv 365 mm
-
Innenwände komplett massiv
-
Braas-Tondachziegel
-
Rollläden im Erdgeschoss
-
Haustür aus Aluminium
-
Sockelputz
-
Bodenebene Dusche
-
Wärmepumpe
-
Fußbodenheizung
-
Fliesen im Bad, WC und HAR**
-
Blower Door Test
Kontakt
Hier können Sie weitere Informationen und Preise zu diesem Haustyp anfordern. Gern stehen wir Ihnen auch für ein Beratungsgespräch zur individuellen Anpassung zur Verfügung.


































