Haustyp 319 - 142 m²
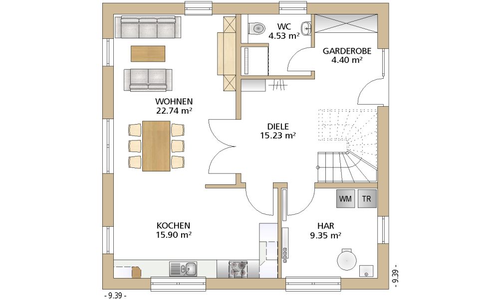
Eine große Küche ist bei unserer Stadtvilla 319 der Mittelpunkt des Hauses. Der Übergang zum Wohnzimmer kann offen und geschlossen gestaltet werden. Eine praktische Garderoben-Nische sorgt für Ordnung und lässt den Blick auf die zweiflügelige Tür zum Wohnbereich zu. Ein großer Hausanschlussraum und eine Dusche im Gäste-WC komplettieren das Erdgeschoss. Oben werden sich die Kinder in den über 17 m² großen Zimmern wohlfühlen.
Die kompakte Stadtvilla 319 bietet mit 135 m² Wohnfläche ausreichend Platz für die ganze Familie. Für die Optik des Hauses stehen unzählige Farbvarianten für Dach, Fenster und Fassade zur Verfügung.
Maße & Preise
-
Außenmaße
9,39 x 9,39 m -
Grundfläche
142,15 m² -
Wohnfläche
135,41 m² -
Mitbau-Haus (Fliesen, Maler, Bodenbeläge, Sanitärobjekte & Innentüren in Eigenleistung)*
303.727,00 EUR -
Schlüsselfertig (ohne Maler / Bodenbeläge)*
335.089,00 EUR -
Bezugsfertig*
377.210,00 EUR
Inklusivleistungen
-
Änderung des Grundrisses
-
Bauantrag
-
Baugrunduntersuchung
-
Baustromverteiler
-
Standard-Erdarbeiten & Bodenplatte
-
Außenwände massiv 365 mm
-
Innenwände komplett massiv
-
Braas-Tondachziegel
-
Haustür aus Aluminium
-
Sockelputz
-
Bodenebene Dusche
-
Wärmepumpe
-
Fußbodenheizung
-
Fliesen im Bad, WC und HAR**
-
Blower Door Test
Kontakt
Hier können Sie weitere Informationen und Preise zu diesem Haustyp anfordern. Gern stehen wir Ihnen auch für ein Beratungsgespräch zur individuellen Anpassung zur Verfügung.
































