Haustyp 302 - 203 m²
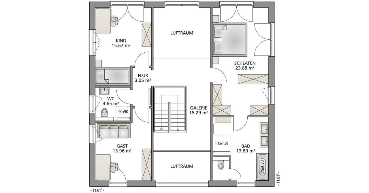
Die Stadtvilla 302 bietet mit ihrem großen Luftraum über dem Essbereich viel Platz zur Entfaltung Ihrer Vorstellungen. Ebenso punktet das Haus mit einer großzügigen Wohnfläche von über 200 m² und ermöglicht Platz für die ganze Familie. Der lichtdurchflutete Wohn-/Essbereich ist einer super Möglichkeit gemeinsam viel Zeit im Haus zu verbringen, ohne auf Sonnenschein verzichten zu müssen. Das Arbeiten im Home-Office ist in der Stadtvilla 302 auch kein Problem, mit einem gemütlichen Arbeitszimmer im Erdgeschoss haben Sie die besten Voraussetzungen dafür. Die separaten Bereiche der Eltern und der Kinder ist durch eine sehr offene Galerie auch optisch getrennt.
Gern passen wir das Haus von der Geometrie oder auch der Funktionalität an Ihre Vorstellung an. Kommen Sie einfach mit Ihren Wünschen auf uns zu!
Maße & Preise
-
Außenmaße
11,61 x 11,61 m -
Grundfläche
203,33 m² -
Wohnfläche
198,50 m² -
Mitbau-Haus (Fliesen, Maler, Bodenbeläge, Sanitärobjekte & Innentüren in Eigenleistung)*
416.501,00 EUR -
Schlüsselfertig (ohne Maler / Bodenbeläge)*
445.806,00 EUR -
Bezugsfertig*
501.619,00 EUR
Inklusivleistungen
-
Änderung des Grundrisses
-
Bauantrag
-
Baugrunduntersuchung
-
Baustromverteiler
-
Standard-Erdarbeiten & Bodenplatte
-
Außenwände massiv 365 mm
-
Innenwände komplett massiv
-
Braas-Tondachziegel
-
Haustür aus Aluminium
-
Sockelputz
-
Bodenebene Dusche
-
Wärmepumpe
-
Fußbodenheizung
-
Fliesen im Bad, WC und HAR**
-
Blower Door Test
Kontakt
Hier können Sie weitere Informationen und Preise zu diesem Haustyp anfordern. Gern stehen wir Ihnen auch für ein Beratungsgespräch zur individuellen Anpassung zur Verfügung.
































