Haustyp 234 - 146 m²
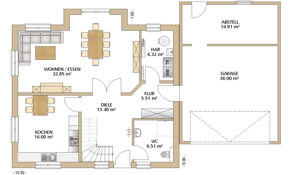
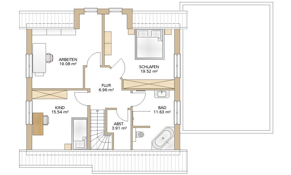
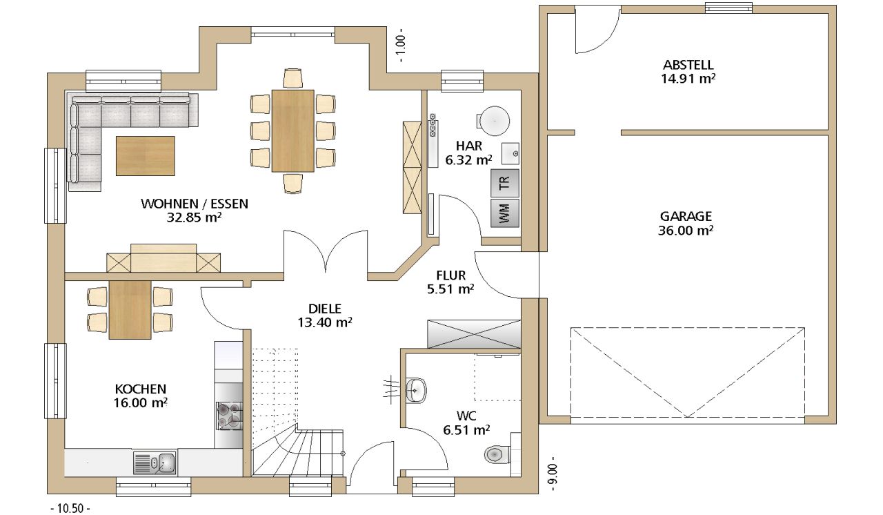
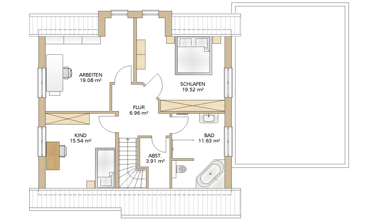
Massiv, geräumig und besonders. Der Klassiker 234 hält für Sie einen Erker, eine Gaube und eine Garage mit Abstellmöglichkeit für Sie bereit. Auf seinen knapp 145m² befindet sich im Erdgeschoss eine separate Küche, ein offener Wohn/Essbereich, ein WC und ein Hausanschlussraum. Das Obergeschoss bietet Ihnen neben einem Bad und einem großen Schlafzimmer, die Möglichkeit auf zwei weitere Zimmer, die sowohl als Arbeitszimmer, als auch als Kinderzimmer genutzt werden können.
Dieser Klassiker ist nicht nur von Innen, sondern auch von Außen eine Besonderheit und kann von Ihnen Individuell an Ihre Bedürfnisse angepasst werden.
Maße & Preise
-
Außenmaße
10,50 x 9,00 m -
Grundfläche
157,27 m² -
Wohnfläche
146,54 m² -
Mitbau-Haus (Fliesen, Maler, Bodenbeläge, Sanitärobjekte & Innentüren in Eigenleistung)*
328.466,00 EUR -
Schlüsselfertig (ohne Maler / Bodenbeläge)*
358.435,00 EUR -
Bezugsfertig*
408.636,00 EUR -
Garage
57.900,00 EUR
Inklusivleistungen
-
Änderung des Grundrisses
-
Bauantrag
-
Baugrunduntersuchung
-
Baustromverteiler
-
Standard-Erdarbeiten & Bodenplatte
-
Außenwände massiv 365 mm
-
Innenwände komplett massiv
-
Braas-Tondachziegel
-
Haustür aus Aluminium
-
Sockelputz
-
Bodenebene Dusche
-
Wärmepumpe
-
Fußbodenheizung
-
Fliesen im Bad, WC und HAR**
-
Blower Door Test
Kontakt
Hier können Sie weitere Informationen und Preise zu diesem Haustyp anfordern. Gern stehen wir Ihnen auch für ein Beratungsgespräch zur individuellen Anpassung zur Verfügung.
































