Haustyp 138 - 130 m²
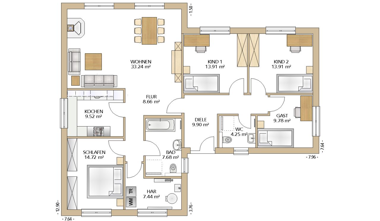
Unser Winkelbungalow 138 ist bestens für die wachsende Familie geeignet. Im 130 m² großen Einfamilienhaus kann die Küche als geschlossene oder offene Variante gestaltet werden. Insgesamt 4 Schlafzimmer können variabel für die Kinder, zum Arbeiten oder als Gästezimmer genutzt werden. Das zweite Duschbad hilft, Engpässe am Morgen zu vermeiden.
Die beiden gleichen Schenkel des Hauses sorgen für eine harmonische Dachform, die mit einer Neigung von 23° einen großen Stauraum bietet.
Ist dieser Haustyp nicht in der richtigen Größe oder möchten Sie ihn etwas umgestalten? Das ist kein Problem. Wir stehen Ihnen bei der Suche nach einem passenden Grundriss gern zu Seite.
Maße & Preise
-
Außenmaße
15,60 x 12,90 m -
Grundfläche
130,62 m² -
Wohnfläche
130,62 m² -
Mitbau-Haus (Fliesen, Maler, Bodenbeläge, Sanitärobjekte & Innentüren in Eigenleistung)*
310.887,00 EUR -
Schlüsselfertig (ohne Maler / Bodenbeläge)*
335.297,00 EUR -
Bezugsfertig*
377.059,00 EUR
Inklusivleistungen
-
Änderung des Grundrisses
-
Bauantrag
-
Baugrunduntersuchung
-
Baustromverteiler
-
Standard-Erdarbeiten & Bodenplatte
-
Außenwände massiv 365 mm
-
Innenwände komplett massiv
-
Braas-Tondachziegel
-
Haustür aus Aluminium
-
Sockelputz
-
Bodenebene Dusche
-
Wärmepumpe
-
Fußbodenheizung
-
Fliesen im Bad, WC und HAR**
-
Blower Door Test
Kontakt
Hier können Sie weitere Informationen und Preise zu diesem Haustyp anfordern. Gern stehen wir Ihnen auch für ein Beratungsgespräch zur individuellen Anpassung zur Verfügung.































