Haustyp 125 - 174 m²
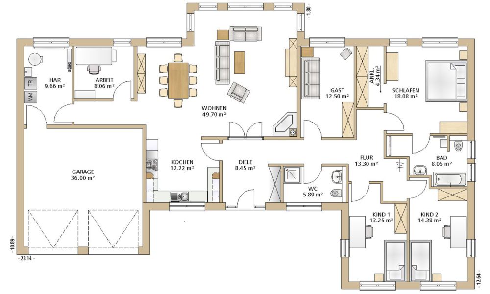
Alles drin. Der geräumige Bungalow 125 hat praktisch alles, was ein Haus braucht. 2 Kinderzimmer, Schlafen, Ankleide, Gäste, Arbeiten, 2 Bäder, und eine Doppelgarage. Hier muss das Grundstück fast 30 m breit sein. Aber wer dies hat, wird bei diesem Haustyp leuchtende Augen bekommen. Großzügig und dennoch sehr praktikabel. Die integrierte Garage bietet einen Komfort und verleiht dem Haus eine Portion Extravaganz.
Übrigens können auch schmalere Grundrisse dieser Art im Rahmen einer individuellen Planung realisiert werden. Fragen Sie uns. Wir helfen gern.
Maße & Preise
-
Außenmaße
23,14 x 12,64 m -
Grundfläche
210,93 m² -
Wohnfläche
174,93 m² -
Mitbau-Haus (Fliesen, Maler, Bodenbeläge, Sanitärobjekte & Innentüren in Eigenleistung)*
416.119,00 EUR -
Schlüsselfertig (ohne Maler / Bodenbeläge)*
446.087,00 EUR -
Bezugsfertig*
500.857,00 EUR
lt. Leistungsbeschreibung
Inklusivleistungen
-
Änderung des Grundrisses
-
Gäste-WC mit Dusche
-
Bauantrag
-
Baugrunduntersuchung
-
Baustromverteiler
-
Standard-Erdarbeiten & Bodenplatte
-
Außenwände massiv 365 mm
-
Innenwände komplett massiv
-
Braas-Tondachziegel
-
Haustür aus Aluminium
-
Sockelputz
-
Bodenebene Dusche
-
Wärmepumpe
-
Fußbodenheizung
-
Fliesen im Bad, WC und HAR**
-
Blower Door Test
** nicht bei Mitbau-Haus
Kontakt
Hier können Sie weitere Informationen und Preise zu diesem Haustyp anfordern. Gern stehen wir Ihnen auch für ein Beratungsgespräch zur individuellen Anpassung zur Verfügung.































