Haustyp 123 - 131 m²
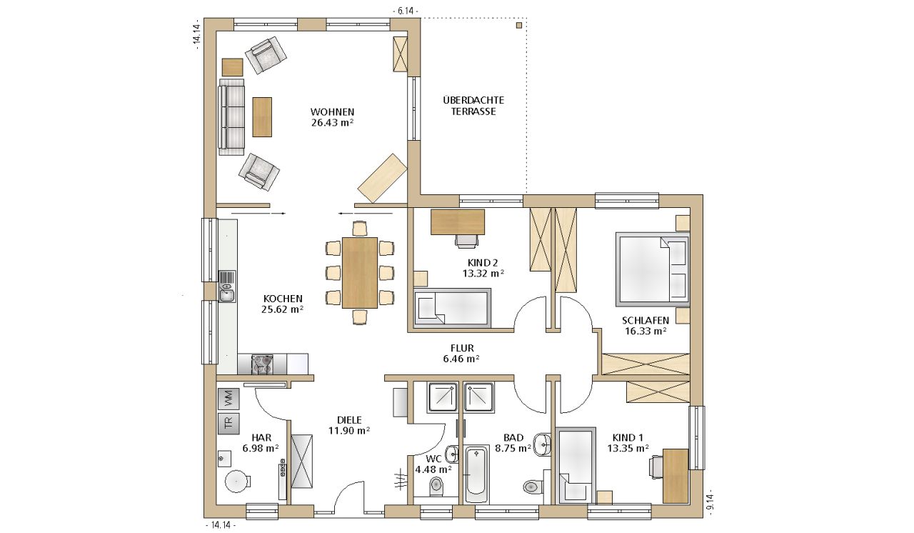
Offenheit ist die Maxime des Haustyps 123. Schon beim Betreten des Hauses steht man mitten im Familienleben. Der Zugang zu einem separaten Bereich mit 3 Schlafzimmern und einem Bad kann optional auch mit einer Tür versehen werden.
Der Bungalow 123 besticht nicht nur durch seine inneren Werte. Eine überdachte Terrasse und die großzügige Eingangsfront machen diesen 131 m² großen Winkelbungalow zu einem Schmuckstück.
Maße & Preise
-             Außenmaße
 14,14 x 14,14 m
-             Grundfläche
 131,70 m²
-             Wohnfläche
 131,70 m²
-             Mitbau-Haus (Fliesen, Maler, Bodenbeläge, Sanitärobjekte & Innentüren in Eigenleistung)*
 313.918,00 EUR
-             Schlüsselfertig (ohne Maler / Bodenbeläge)*
 338.863,00 EUR
-             Bezugsfertig*
 382.584,00 EUR
*lt. Leistungsbeschreibung
                
            
        
        Inklusivleistungen
-             Änderung des Grundrisses
-             Überdachung für Terrasse
-             Gäste-WC mit Dusche
-             Bauantrag
-             Baugrunduntersuchung
-             Baustromverteiler
-             Standard-Erdarbeiten & Bodenplatte
-             Außenwände massiv 365 mm
-             Innenwände komplett massiv
-             Braas-Tondachziegel
-             Haustür aus Aluminium
-             Sockelputz
-             Bodenebene Dusche
-             Wärmepumpe
-             Fußbodenheizung
-             Fliesen im Bad, WC und HAR**
-             Blower Door Test
** nicht bei Mitbau-Haus
                
            
        
        Kontakt
Hier können Sie weitere Informationen und Preise zu diesem Haustyp anfordern. Gern stehen wir Ihnen auch für ein Beratungsgespräch zur individuellen Anpassung zur Verfügung.
 
 
 
 
 
 
 
 
 
 
 
 
 
 
 
 
 
 
 
 
 
 
 
 
 
 
 
 
 
 
 
