Haustyp 118 - 120 m²
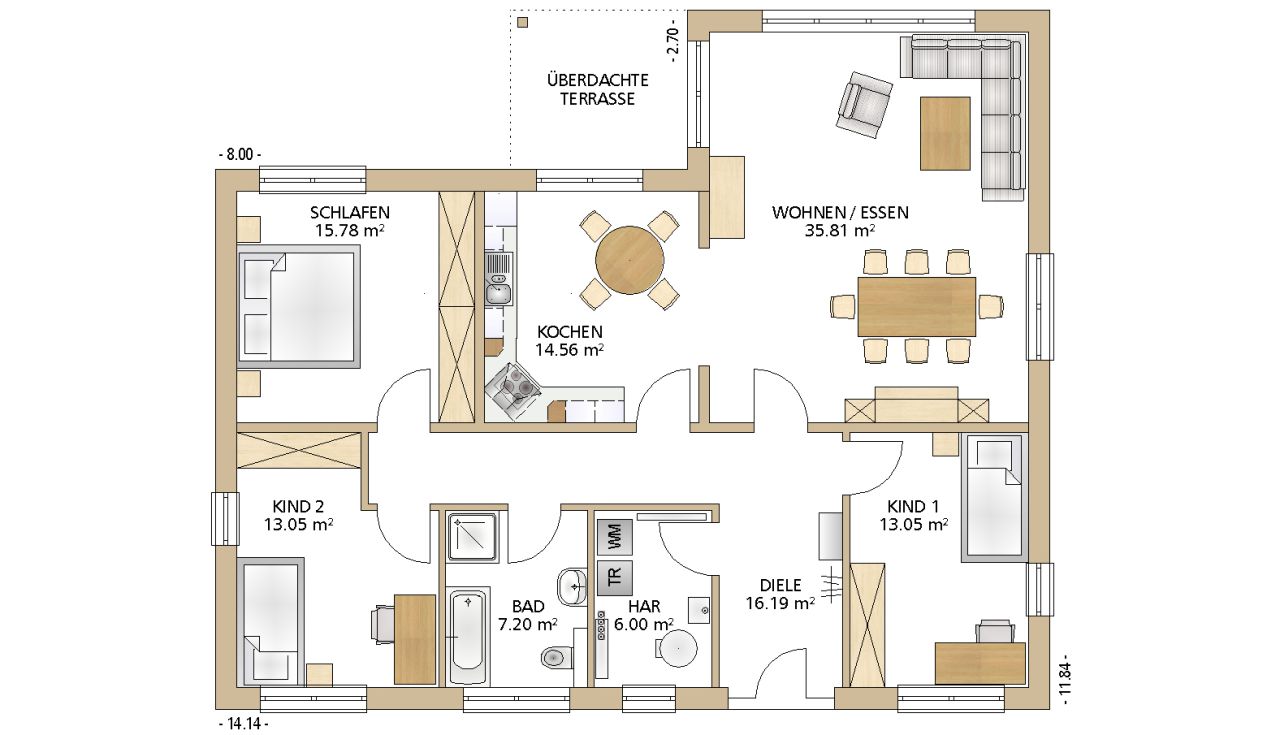
Der Grundriss unseres Winkelbungalows 118 überzeugt durch klare Linien. 3 Schlafzimmer und ein großer Wohn- / Kochbereich, der wahlweise offen oder geschlossen bestellt werden kann, werden durch ein funktionales Bad und einen Hausanschlussraum ergänzt.
Die überdachte Terrasse ist von der Küche und vom Wohnzimmer erreichbar. Ein großes 3,60 m breites Fenster öffnet den Blick in den Garten und sorgt für viel Licht im Wohnzimmer.
Maße & Preise
-
Außenmaße
14,14 x 11,84 m -
Grundfläche
119,74 m² -
Wohnfläche
119,74 m² -
Mitbau-Haus (Fliesen, Maler, Bodenbeläge, Sanitärobjekte & Innentüren in Eigenleistung)*
295.447,00 EUR -
Schlüsselfertig (ohne Maler / Bodenbeläge)*
319.896,00 EUR -
Bezugsfertig*
358.135,00 EUR
*lt. Leistungsbeschreibung
Inklusivleistungen
-
Änderung des Grundrisses
-
Überdachung für Terrasse
-
Bauantrag
-
Baugrunduntersuchung
-
Baustromverteiler
-
Standard-Erdarbeiten & Bodenplatte
-
Außenwände massiv 365 mm
-
Innenwände komplett massiv
-
Braas-Tondachziegel
-
Rollläden im Erdgeschoss
-
Haustür aus Aluminium
-
Sockelputz
-
Bodenebene Dusche
-
Wärmepumpe
-
Fußbodenheizung
-
Fliesen im Bad, WC und HAR**
-
Blower Door Test
** nicht bei Mitbau-Haus
Kontakt
Hier können Sie weitere Informationen und Preise zu diesem Haustyp anfordern. Gern stehen wir Ihnen auch für ein Beratungsgespräch zur individuellen Anpassung zur Verfügung.































