Haustyp 101 - 86 m²
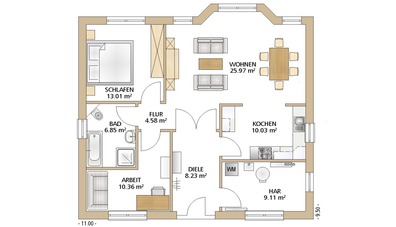
Auf 86 m² Wohnfläche finden sich 3 Zimmer, ein funktionelles Bad, eine offene Küche und ein großer Hausanschlussraum. Der Erker lässt den Wohn- / Essbereich trotz der kompakten Maße des Bungalows sehr großzügig erscheinen.
Durch die Außenmaße von 11,00 x 9,50 m eignet sich dieser Bungalow für eine eingeschossige Bebauung auch auf kleinen Grundstücken.
Der Bungalow 101 zeigt, dass kleine Häuser schön sein können. Haus bauen ist bei Klawiter Hausbau in der Region Berlin - Brandenburg übrigens zu einem günstigen Preis realisierbar. Fragen Sie uns nach einem konkreten Hausbau-Angebot. Sie erhalten dann eine komplette Leistungsbeschreibung und Preise für häufig angefragte Zusatzleistungen.
Maße & Preise
-
Außenmaße
11,00 x 10,10 m -
Grundfläche
86,62 m² -
Wohnfläche
86,62 m² -
Mitbau-Haus (Fliesen, Maler, Bodenbeläge, Sanitärobjekte & Innentüren in Eigenleistung)*
217.293,00 EUR -
Schlüsselfertig (ohne Maler / Bodenbeläge)*
229.710,00 EUR -
Bezugsfertig*
257.940,00 EUR
Inklusivleistungen
-
Änderung des Grundrisses
-
Bauantrag
-
Baugrunduntersuchung
-
Baustromverteiler
-
Standard-Erdarbeiten & Bodenplatte
-
Außenwände massiv 365 mm
-
Innenwände komplett massiv
-
Braas-Tondachziegel
-
Rollläden im Erdgeschoss
-
Haustür aus Aluminium
-
Sockelputz
-
Bodenebene Dusche
-
Wärmepumpe
-
Fußbodenheizung
-
Fliesen im Bad, WC und HAR**
-
Blower Door Test
Kontakt
Hier können Sie weitere Informationen und Preise zu diesem Haustyp anfordern. Gern stehen wir Ihnen auch für ein Beratungsgespräch zur individuellen Anpassung zur Verfügung.































