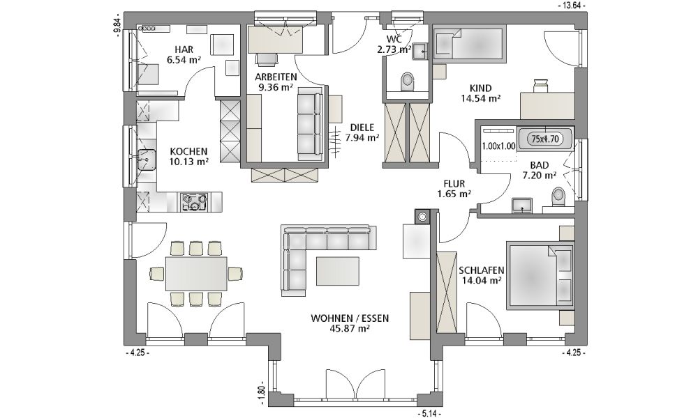
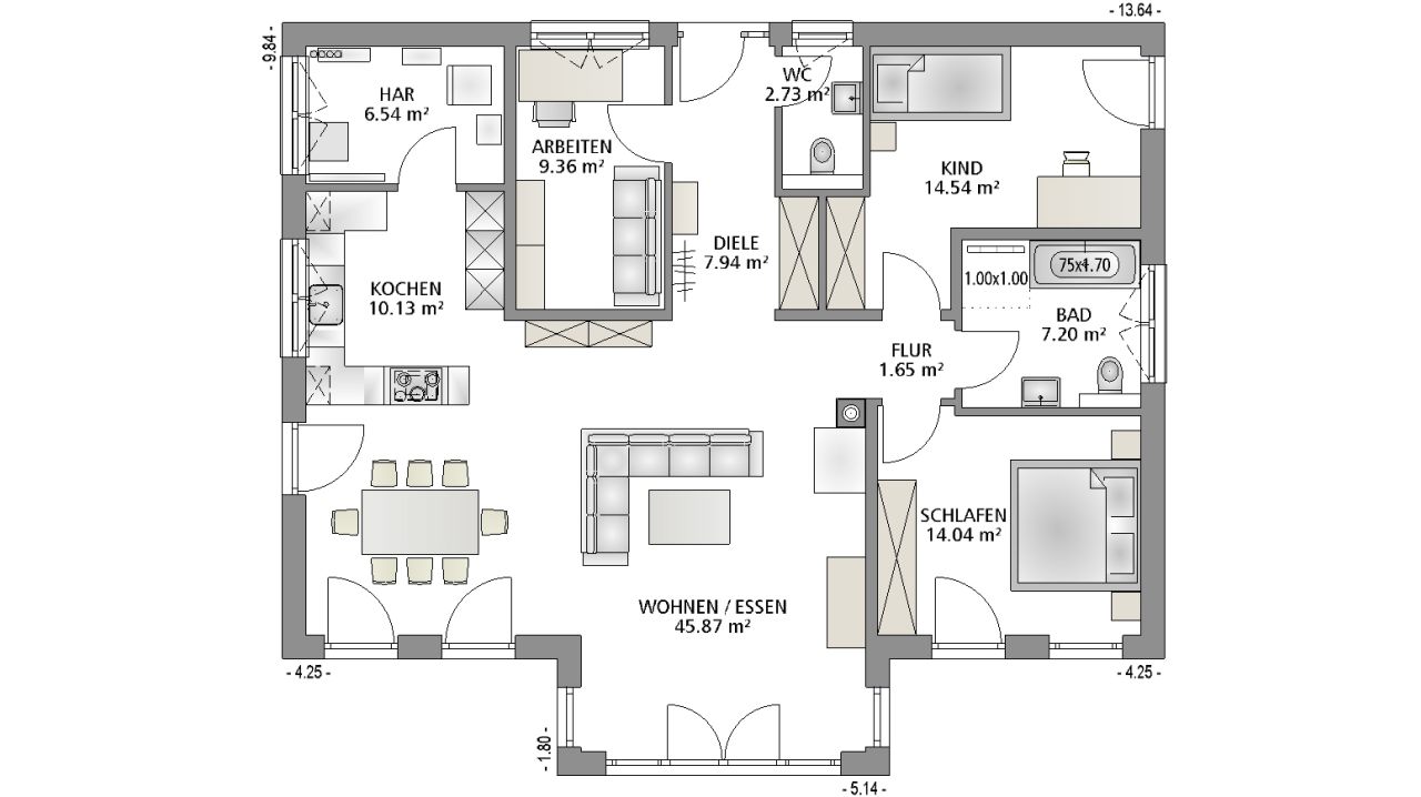
Haustyp 121 - 117 m²
Knapp 118 m² Wohnfläche stehen den Nutzern des Haustyps 121 zur Verfügung. Ein großer Erker macht die offene Gestaltung des Wohn- / Kochbereiches noch interessanter. Der über die Küche zu erreichende Hausanschlussraum kann auch als Speisekammer genutzt werden.
Das große Fenster im Erker kann optional auch als Hebeschiebetür ausgeführt werden. Der Zugang zum Garten ist auch vom Schlafzimmer aus möglich.
Maße & Preise
-
Außenmaße
13,64 x 11,64 m -
Grundfläche
117,74 m² -
Wohnfläche
117,74 m² -
Mitbau-Haus (Fliesen, Maler, Bodenbeläge, Sanitärobjekte & Innentüren in Eigenleistung)*
286.274,00 EUR -
Schlüsselfertig (ohne Maler / Bodenbeläge)*
308.279,00 EUR -
Bezugsfertig*
347.329,00 EUR
*lt. Leistungsbeschreibung
Inklusivleistungen
-
Änderung des Grundrisses
-
Gäste-WC
-
Bauantrag
-
Baugrunduntersuchung
-
Baustromverteiler
-
Standard-Erdarbeiten & Bodenplatte
-
Außenwände massiv 365 mm
-
Innenwände komplett massiv
-
Braas-Tondachziegel
-
Haustür aus Aluminium
-
Sockelputz
-
Bodenebene Dusche
-
Wärmepumpe
-
Fußbodenheizung
-
Fliesen im Bad, WC und HAR**
-
Blower Door Test
** nicht bei Mitbau-Haus
Kontakt
Hier können Sie weitere Informationen und Preise zu diesem Haustyp anfordern. Gern stehen wir Ihnen auch für ein Beratungsgespräch zur individuellen Anpassung zur Verfügung.































