Haustyp 107 - 128 m²
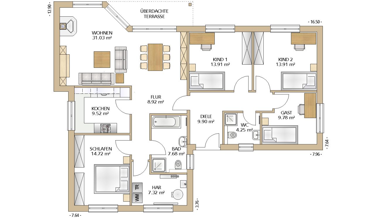
Licht ist das markanteste Merkmal des Haustyps 107. Große raumhohe Fenster sorgen für eine exzellente Beleuchtung des bis zur Firstpfette offen gestalteten Wohnzimmers. Dadurch entsteht ein unbeschreibliches Raumgefühl. Der Bungalow 107 bietet aber noch viel mehr. Ein zusätzliches Duschbad in unmittelbarer Nähe der Kinderzimmer sorgt für kurze Wege und Flexibilität am Morgen.
Die überdachte Terrasse rundet die tolle Ansicht der großen Glasflächen ab. Kurzum: Praktisch, schön und gemütlich.
Maße & Preise
-
Außenmaße
16,50 x 12,90 m -
Grundfläche
128,50 m² -
Wohnfläche
128,50 m² -
Mitbau-Haus (Fliesen, Maler, Bodenbeläge, Sanitärobjekte & Innentüren in Eigenleistung)*
299.401.00 EUR -
Schlüsselfertig (ohne Maler / Bodenbeläge)*
323.779,00 EUR -
Bezugsfertig*
366.036,00 EUR
*lt. Leistungsbeschreibung
Inklusivleistungen
-
Änderung des Grundrisses
-
Überdachung für Terrasse
-
Gäste-WC
-
Bauantrag
-
Baugrunduntersuchung
-
Baustromverteiler
-
Standard-Erdarbeiten & Bodenplatte
-
Außenwände massiv 365 mm
-
Innenwände komplett massiv
-
Braas-Tondachziegel
-
Haustür aus Aluminium
-
Sockelputz
-
Bodenebene Dusche
-
Wärmepumpe
-
Fußbodenheizung
-
Fliesen im Bad, WC und HAR**
-
Blower Door Test
** nicht bei Mitbau-Haus
Kontakt
Hier können Sie weitere Informationen und Preise zu diesem Haustyp anfordern. Gern stehen wir Ihnen auch für ein Beratungsgespräch zur individuellen Anpassung zur Verfügung.































