Haustyp 105 - 140 m²
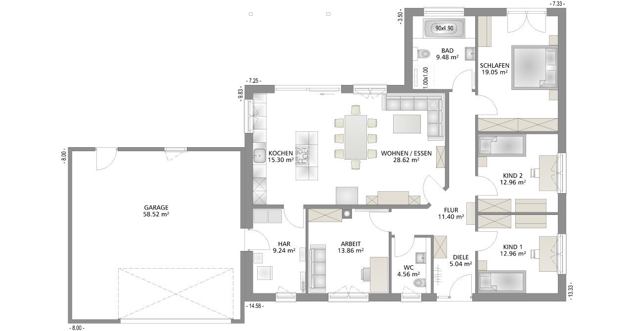
Der große Wohn-Essbereich ist der Treffpunkt für die ganze Familie. Im Sommer können Sie diesen unter die große überdachte Terrasse verlagern, die durch eine große Hebe-/Schiebetür erreichbar ist. Zwei Kinderzimmer, ein geräumiges Schlafzimmer und ein Raum für Homeoffice oder Gäste komplettieren das Haus.
Die Garage mit direktem Zugang zum Haus bietet Platz für 2 Autos und eine Stellfläche für Regale und eine Werkbank.
Maße & Preise
-
Außenmaße
14,58 x 13,33 m -
Grundfläche
140,35 m² -
Wohnfläche
140,35 m² -
Mitbau-Haus (Fliesen, Maler, Bodenbeläge, Sanitärobjekte & Innentüren in Eigenleistung)*
309.626,00 m² -
Schlüsselfertig (ohne Maler / Bodenbeläge)*
336.124,00 EUR -
Bezugsfertig*
379.713,00 EUR -
Garage
64.900,00 EUR
Inklusivleistungen
-
Änderung des Grundrisses
-
Überdachung für Terrasse
-
Gäste-WC
-
Bauantrag
-
Baugrunduntersuchung
-
Baustromverteiler
-
Standard-Erdarbeiten & Bodenplatte
-
Außenwände massiv 365 mm
-
Innenwände komplett massiv
-
Braas-Tondachziegel
-
Rollläden im Erdgeschoss
-
Haustür aus Aluminium
-
Sockelputz
-
Bodenebene Dusche
-
Wärmepumpe
-
Fußbodenheizung
-
Fliesen im Bad, WC und HAR**
-
Blower Door Test
** nicht bei Mitbau-Haus
Kontakt
Hier können Sie weitere Informationen und Preise zu diesem Haustyp anfordern. Gern stehen wir Ihnen auch für ein Beratungsgespräch zur individuellen Anpassung zur Verfügung.
































